Need to talk to our team?
Get in touch
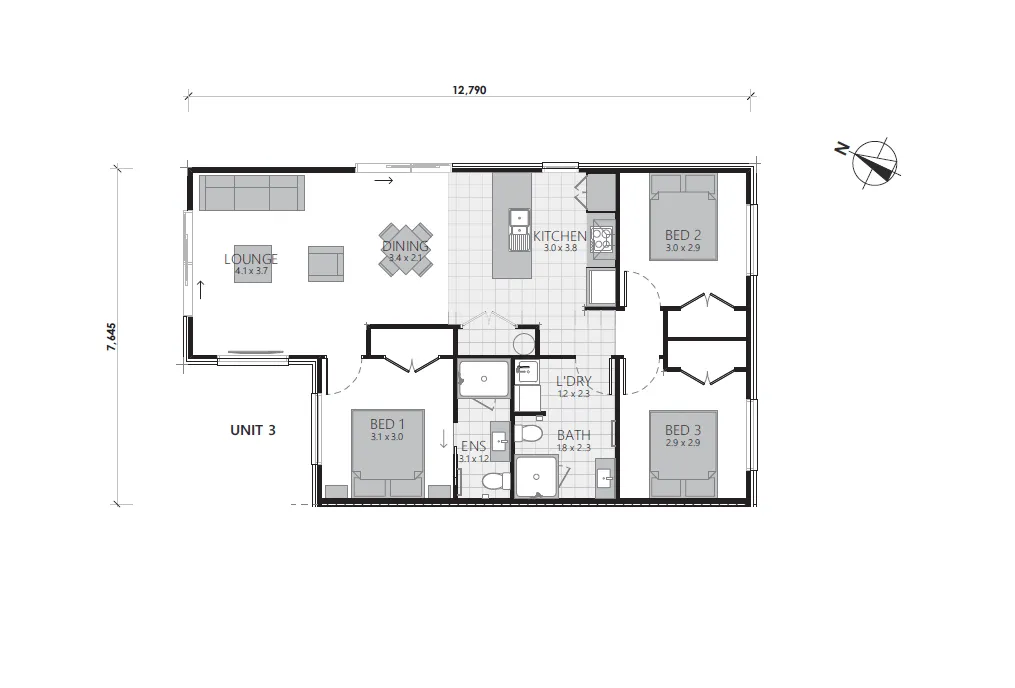
Your search for affordability ends here! Get on the property ladder with this Brand new 3 bedroom 2 bathroom low maintenance cozy home offering excellent potential at an affordable price and Under Construction now with move-in date schedule for July '26
Warm, dry quite home with modern galley style kitchen fitted out with the latest in Bosch appliances, Heat pump, north facing living area to maximize the sun and with great amenities on hand with Four Square and take-aways just across the road - and Medical Centre a short stroll away.
Built by Classic Builders Purchase with confidence – built for you by Classic Builders, one of New Zealand’s largest residential building companies. Over 25 years of building homes New Zealanders love to live in. This home is backed by a 10-year structural warranty, and two years’ defects cover – so you can enjoy your brand-new home with confidence.
