Need to talk to our team?
Get in touch
Awa Park, is a thoughtfully planned new community spanning 90 hectares in the heart of Maewa.
Soon-to-be home to 600 residences along with a potential retirement village and local amenities, Awa Park offers a diverse mix of living opportunities that cater to a range of needs, budgets, and aspirations.
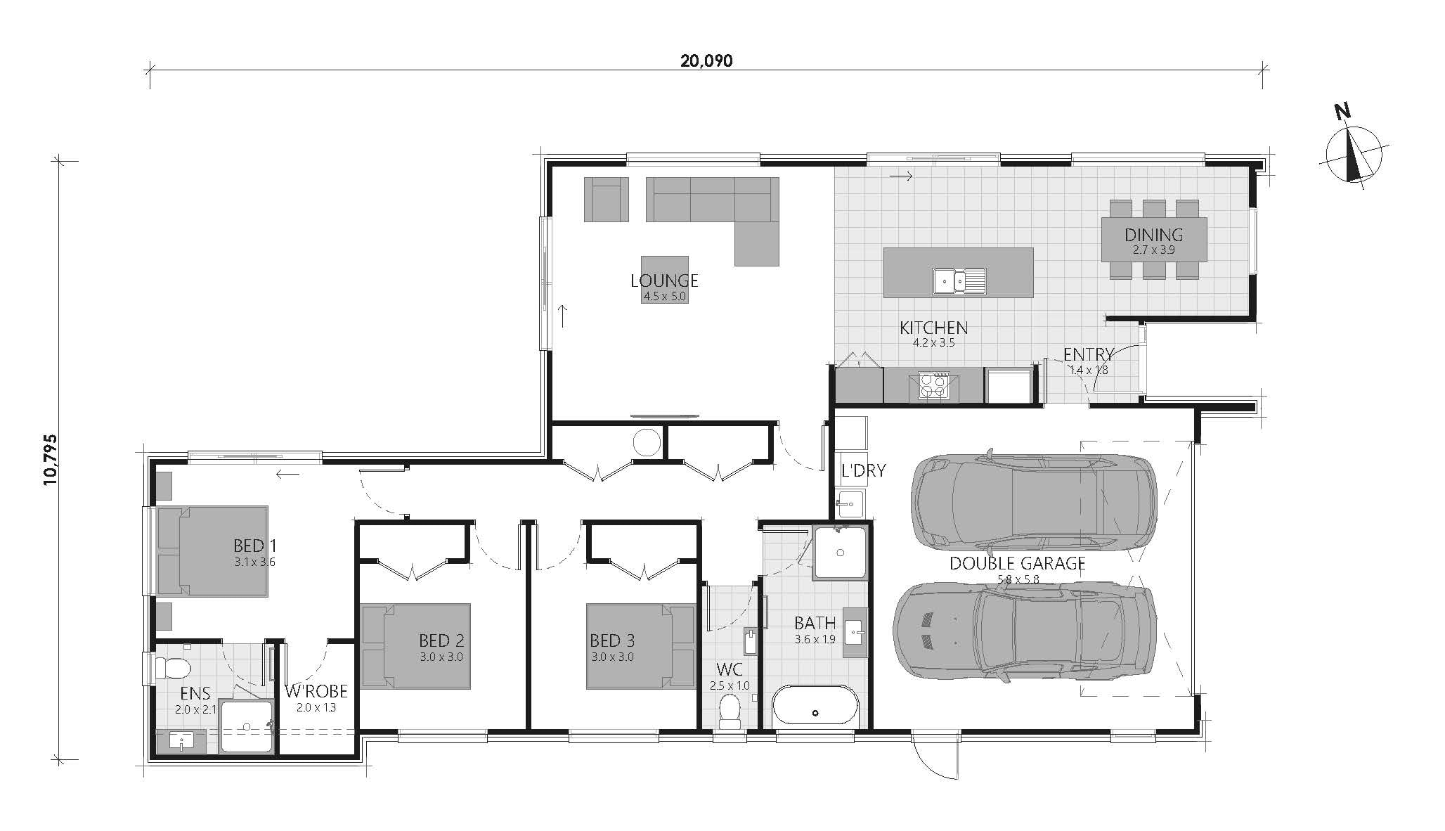
This thoughtfully designed 167.6m2 home offers modern open plan living on a 493m2 section.
This package includes everything you need to move in and enjoy:
3 bedrooms, 2 bathrooms, separate toilet and internal access double garage
Open-plan kitchen, dining, and lounge
Master with ensuite and walk-in robe
Quality fixtures throughout
Thermally broken double glazed window joinery and an energy-efficient heat pump for year-round comfort
Comprehensive appliance package (e.g., oven, cooktop, rangehood, dishwasher)
Fully landscaped section with driveway, fencing, lawns, planting, clothesline and letterbox
With parks, schools, and shops all close by it’s a neighbourhood designed for easy living, whether you’re a first home buyer, a growing family, or ready to downsize. With modern designs and the comfort of a new build, Awa Park makes settling into Feilding’s friendly community even easier.
Purchase with confidence – built for you by Classic Builders, one of New Zealand’s largest residential building companies. Over 25 years of building homes New Zealanders love to live in. This home is backed by a 10-year structural warranty, and two years’ defects cover – so you can enjoy your brand-new home with confidence.
