Need to talk to our team?
Get in touch
Hapori Park, Hamilton
Hapori Park is a fresh new neighbourhood bringing modern homes into a welcoming, family-friendly setting. Close to schools, shops, and key connections across the Waikato, it’s a location that makes everyday life simple. With a range of brand-new designs available, Hapori Park is the ideal spot to settle in and enjoy comfort, convenience, and community.
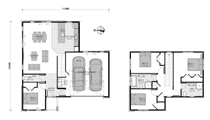
This thoughtfully designed 4 bed, 2 bath home delivers modern open plan living on a 350.2m2 section.
• House size: 185.7 m²
• Status:
This package includes everything you need to move in and enjoy: • Heat pump • Full appliance package (e.g., oven, cooktop, rangehood, dishwasher) • Floor coverings throughout • Driveway, fencing, and letterbox • Hard and soft landscaping • Clothesline
Purchase with confidence – built for you by Classic Builders, one of New Zealand’s largest residential building companies. Over 25 years of building homes New Zealanders love to live in. This home is backed by a 10-year structural warranty, and two years’ defects cover – so you can enjoy your brand-new home with confidence.
