Need to talk to our team?
Get in touch
Wharenui Rise is Rotorua’s newest neighbourhood, designed to bring together modern living and the natural beauty the region is known for. Close to schools, shops, and the city centre, it’s a location that makes daily life simple while keeping you connected to lakes, forests, and all the outdoor adventures Rotorua offers. A brand-new home here means comfort, convenience, and a lifestyle that feels uniquely Rotorua.
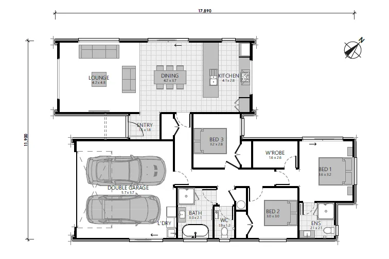
This thoughtfully designed 3 bed, 2 bath home delivers open-plan living, internal access garage on a 496m2 section.
This package includes everything you need to move in and enjoy: · Heat pump · Full appliance package (e.g., oven, cooktop, rangehood, dishwasher) · Floor coverings throughout · Driveway, fencing, and letterbox · Hard and soft landscaping · Clothesline Built by Classic Builders Purchase with confidence – built for you by Classic Builders, one of New Zealand’s largest residential building companies. Over 25 years of building homes New Zealanders love to live in. This home is backed by a 10-year structural warranty, and two years’ defects cover – so you can enjoy your brand-new home with confidence.
