Need to talk to our team?
Get in touch
Kennedy Ridge, Tauranga
Set in an elevated position with views across Tauranga, Kennedy Ridge is a community that combines modern living with everyday convenience. Close to schools, shopping, and key transport links, it’s an ideal spot for families, professionals, and downsizers looking for a brand-new home. With a range of contemporary designs available, Kennedy Ridge offers the perfect place to put down roots in one of Tauranga’s most connected neighbourhoods.
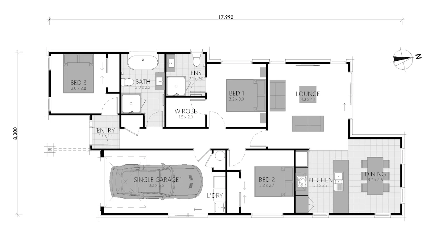
This thoughtfully designed 3 bed, 2 bath home delivers and open-plan living on a 256m2 section.
• House size: 127.2m²
• Status:
This package includes everything you need to move in and enjoy:
• Heat pump • Full appliance package (e.g., oven, cooktop, rangehood, dishwasher) • Floor coverings throughout • Driveway, fencing, and letterbox • Hard and soft landscaping • Clothesline
Purchase with confidence – built for you by Classic Builders, one of New Zealand’s largest residential building companies. Over 25 years of building homes New Zealanders love to live in. This home is backed by a 10-year structural warranty, and two years’ defects cover – so you can enjoy your brand-new home with confidence.
