Need to talk to our team?
Get in touch
Halswell Road, Christchurch
In the sought-after Halswell area, this development brings brand-new homes to a neighbourhood known for its community feel and handy location. With schools, shops, and parks nearby and Christchurch city just a short drive away — you’ll have everything you need close at hand. A new home on Halswell Road is the perfect way to enjoy modern living in one of the city’s most popular suburbs.
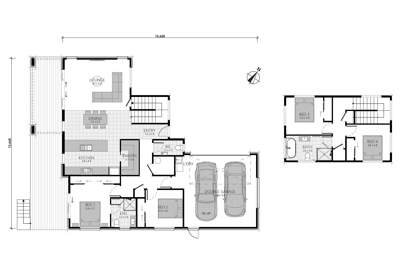
This thoughtfully designed 4 bed, 2 bath home delivers modern open-plan living with internal garage access on a 648m2 section.
• House size: 200.6m²
• Status:
This package includes everything you need to move in and enjoy:
• Heat pump • Full appliance package (e.g., oven, cooktop, rangehood, dishwasher) • Floor coverings throughout • Driveway, fencing, and letterbox • Hard and soft landscaping • Clothesline
Purchase with confidence – built for you by Classic Builders, one of New Zealand’s largest residential building companies. Over 25 years of building homes New Zealanders love to live in. This home is backed by a 10-year structural warranty, and two years’ defects cover – so you can enjoy your brand-new home with confidence.
