Need to talk to our team?
Get in touch
Just a short stroll from the lake, Ngā Roto Estate offers brand-new homes in one of Taupō’s most popular neighbourhoods. With cycleways, reserves, and the waterfront close by, it’s perfect for families, professionals, and those looking to downsize into easy modern living. Add in the convenience of nearby shops, schools, and quick access to town, and Ngā Roto Estate is a place where life feels both relaxed and connected.
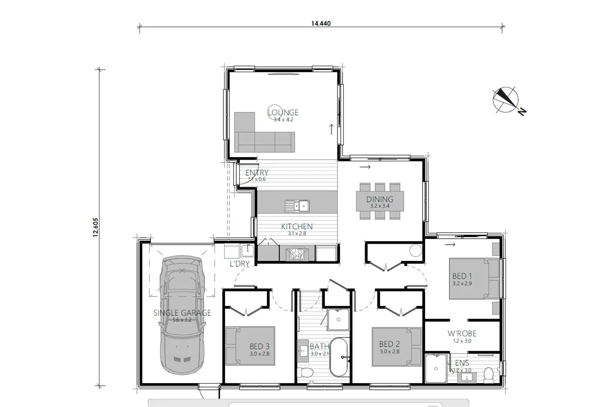
This thoughtfully designed 3 bed, 2 bath home delivers open-plan living, indoor-outdoor flow, internal access garage on a 392m2 section.
· House size: 129.7 m²
This package includes everything you need to move in and enjoy: · Heat pump · Full appliance package (e.g., oven, cooktop, rangehood, dishwasher) · Floor coverings throughout · Driveway, fencing, and letterbox · Hard and soft landscaping · Clothesline
Purchase with confidence – built for you by Classic Builders, one of New Zealand’s largest residential building companies. Over 25 years of building homes New Zealanders love to live in. This home is backed by a 10-year structural warranty, and two years’ defects cover – so you can enjoy your brand-new home with confidence.
