Need to talk to our team?
Get in touch
Woolbrae brings your dream of home ownership within reach.
This vibrant community is soon to be home to 271 new homes. A masterplanned community where architectural quality meets real-world affordability. Homes here won’t just look good, they are built for everyday living, featuring low-maintenance finishes and layouts that maximise space and light.
Just 10 minutes from Queenstown Airport and Frankton Shops, and 30 minutes from the CBD, Woolbrae keeps you close to everything — from great schools and local cafés to the outdoor adventures Queenstown is famous for.
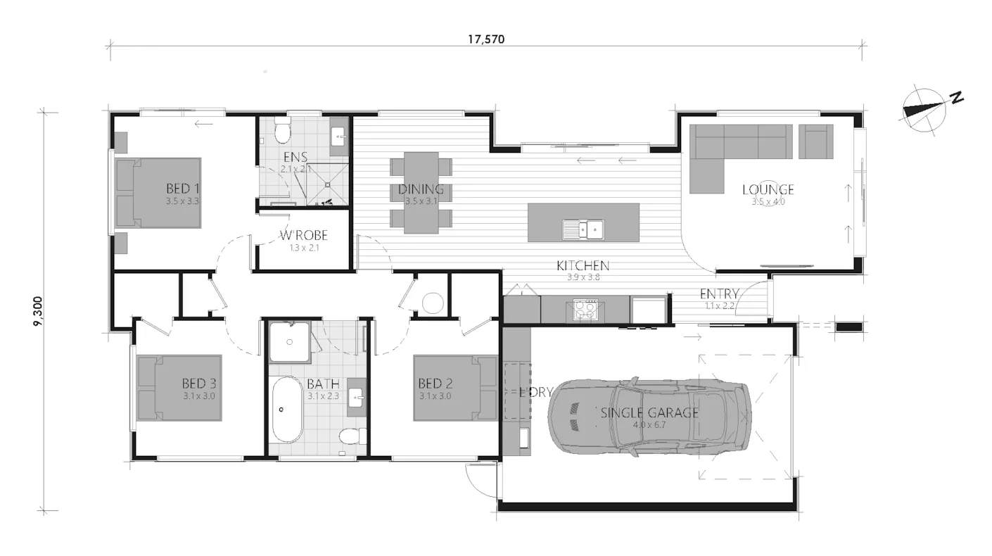
This thoughtfully designed 141m2 standalone home offers modern open plan living on a 330m2 section.
This package includes everything you need to move in and enjoy:
Shared green spaces, a playground and connected trails, it’s a neighbourhood designed for easy living, whether you’re a first home buyer, a growing family, or ready to downsize. Purchase with confidence – built for you by Classic Builders, one of New Zealand’s largest residential building companies. Over 25 years of building homes New Zealanders love to live in. This home is backed by a 10-year structural warranty, and two years’ defects cover – so you can enjoy your brand-new home with confidence.
