Need to talk to our team?
Get in touch
Hawkridge Heights, Tauranga
Hawkridge Heights offers modern living in a quiet, elevated neighbourhood that still keeps you close to the action. Tucked away from the bustle yet only minutes to schools, shops, and Tauranga’s city links, it’s a location that gives you the best of both worlds. With thoughtfully designed new homes, Hawkridge Heights is a place where you can settle in and enjoy the lifestyle you’ve been looking for.
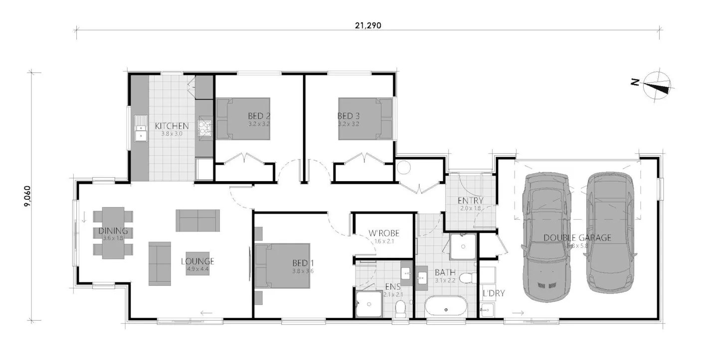
This thoughtfully designed 3 bed, 2 bath home delivers open-plan living on a 546m2 section.
• House size: 158.3m²
• Status:
This package includes everything you need to move in and enjoy: • Heat pump • Full appliance package (e.g., oven, cooktop, rangehood, dishwasher) • Floor coverings throughout • Driveway, fencing, and letterbox • Hard and soft landscaping • Clothesline
Purchase with confidence – built for you by Classic Builders, one of New Zealand’s largest residential building companies. Over 25 years of building homes New Zealanders love to live in. This home is backed by a 10-year structural warranty, and two years’ defects cover – so you can enjoy your brand-new home with confidence.
