Need to talk to our team?
Get in touch
Manu Park, Waikanae
Tucked into a peaceful pocket of Waikanae, Manu Park offers the best of Kapiti living with a modern edge. Surrounded by native reserve and walking tracks, yet only minutes from schools, shops, and transport links, it’s a location that balances lifestyle with convenience. With a brand-new home here, you’ll enjoy comfort, connection, and the relaxed pace Waikanae is known for.
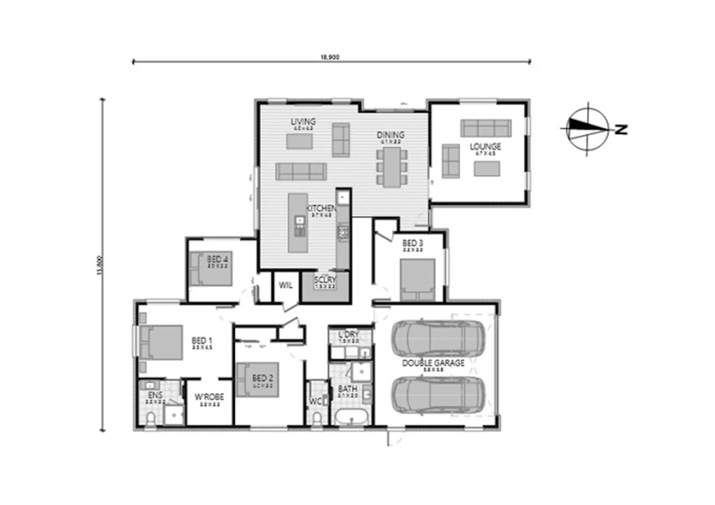
This thoughtfully designed 4 bed, 2 bath home delivers open-plan living and internal garage access on a 665m2 section.
• House size: 220m²
• Status: Ready now
This package includes everything you need to move in and enjoy:
• Heat pump • Full appliance package (e.g., oven, cooktop, rangehood, dishwasher) • Floor coverings throughout • Driveway, fencing, and letterbox • Hard and soft landscaping • Clothesline (Update inclusions as needed for regional specs – e.g., curtains/blinds, internal access garage, window treatments, etc.)
Purchase with confidence – built for you by Classic Builders, one of New Zealand’s largest residential building companies. Over 25 years of building homes New Zealanders love to live in. This home is backed by a 10-year structural warranty, and two years’ defects cover – so you can enjoy your brand-new home with confidence.
