Need to talk to our team?
Get in touch
Puna Rua, Omokoroa
Located in the heart of Omokoroa, Puna Rua offers the best of coastal living with everyday convenience. Just a short walk to the local shops, schools, and the waterfront, this community is perfect for families, professionals, and downsizers alike. With modern home designs and the relaxed lifestyle Omokoroa is known for, Puna Rua is an easy choice for your brand-new home.
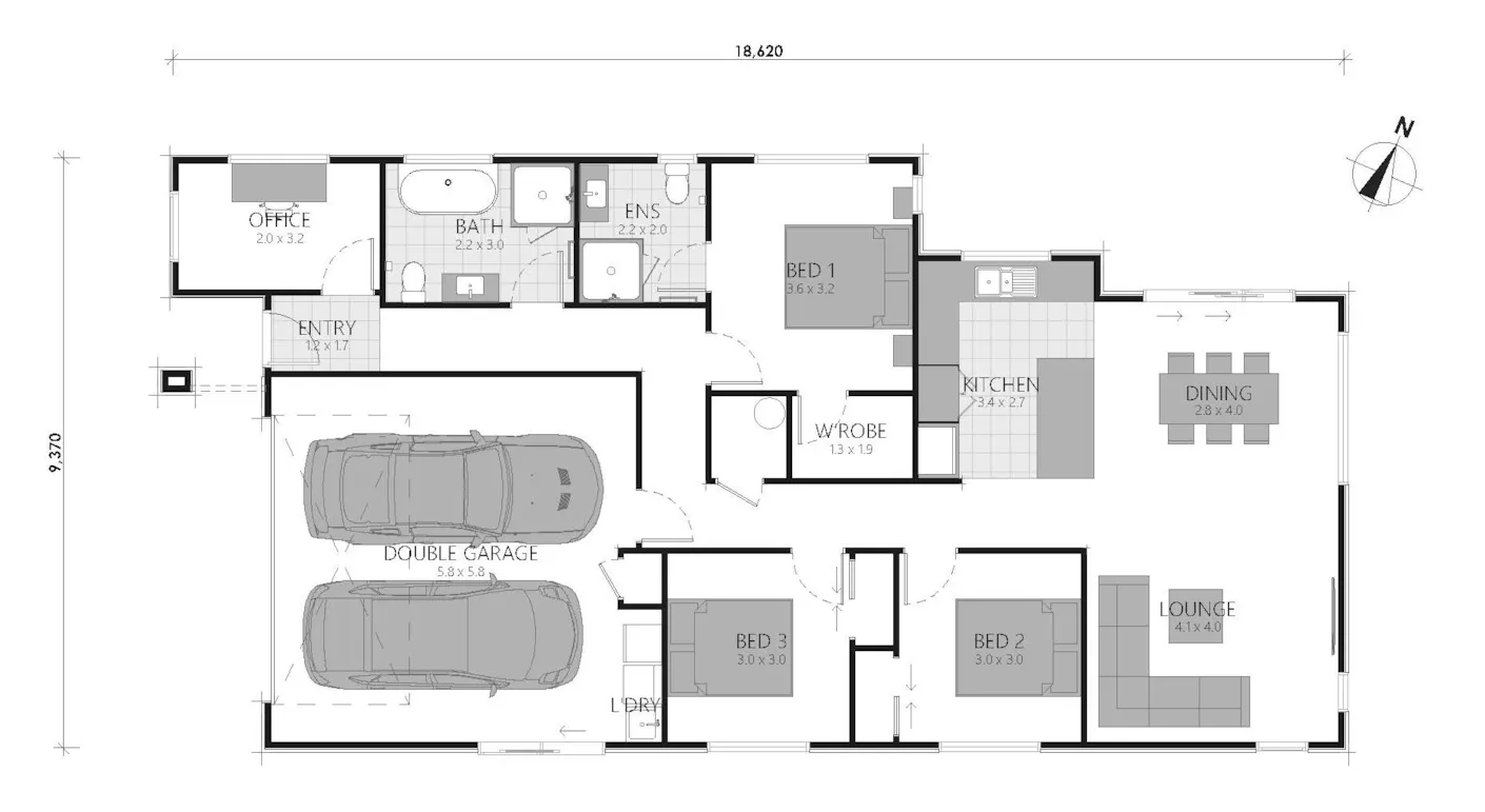
This thoughtfully designed 3 bed, 2bath home delivers open-plan living on a 311m2 section.
• House size: 154.6m²
• Status:
This package includes everything you need to move in and enjoy:
• Heat pump • Full appliance package (e.g., oven, cooktop, rangehood, dishwasher) • Floor coverings throughout • Driveway, fencing, and letterbox • Hard and soft landscaping • Clothesline
Purchase with confidence – built for you by Classic Builders, one of New Zealand’s largest residential building companies. Over 25 years of building homes New Zealanders love to live in. This home is backed by a 10-year structural warranty, and two years’ defects cover – so you can enjoy your brand-new home with confidence.
