Need to talk to our team?
Get in touch
Navigation Heights, Wellington
Set in the hills of Whitby, Navigation Heights offers modern new homes with elevated views and a peaceful community feel. Just minutes from schools, shops, and everyday essentials, it’s a location that combines convenience with comfort. With a range of House & Land packages available, Navigation Heights is an easy choice for families, professionals, and investors looking for a brand-new home in a well-connected part of Wellington.
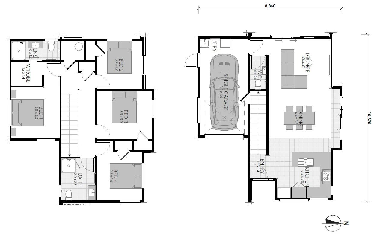
This thoughtfully designed 3 bed, 2 bath home delivers modern low-maintenance living on a 228m2 section.
• House size: 150.3m²
• Status: Ready now
This package includes everything you need to move in and enjoy:
• Heat pump • Full appliance package (e.g., oven, cooktop, rangehood, dishwasher) • Floor coverings throughout • Driveway, fencing, and letterbox • Hard and soft landscaping • Clothesline (Update inclusions as needed for regional specs – e.g., curtains/blinds, internal access garage, window treatments, etc.)
Purchase with confidence – built for you by Classic Builders, one of New Zealand’s largest residential building companies. Over 25 years of building homes New Zealanders love to live in. This home is backed by a 10-year structural warranty, and two years’ defects cover – so you can enjoy your brand-new home with confidence.
